
1,000,000 تومان
لینک دانلود محصول ، پس از خرید موفق برای همیشه در پنل کاربری شما ( قسمت دانلود ها ) قرار میگیرد .
توضیحات کامل پروژه در قسمت پایین همین صفحه می باشد .
فایل نقشه DWG به صورت فشرده ZIP میباشد و باید آن را از حالت فشرده خارج کنید و بعد در برنامه آتوکد قابل استفاده است.
فایلهای دانلود شده در گوشی موبایل نمایش داده نمی شود و باید از نرم افزار winzip استفاده کنید .
برای دریافت و ارسال نسخه کاغذی و PDF ( نمایش در گوشی موبایل ) تماس بگیرید.(شامل هزینه)
قیمت نقشهها و محصولات بدون مهر و امضا میباشد.
در نقشه های سازه ، پلان فونداسیون ، نوع و تیپ خاک زیر آن باید توسط مهندس بومی بررسی گردد .
لینک دانلود محصول ، پس از خرید موفق برای همیشه در پنل کاربری شما ( قسمت دانلود ها ) قرار می گیرد .
ارسال پیدیاف PDF در واتساپ و تلگرام برای نمایش در گوشی موبایل
مشاوره جهت ویرایش نقشه
جانمایی نقشه در ملک شما ( شامل هزینه )
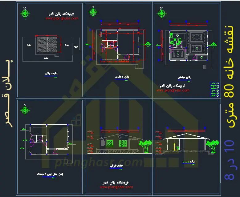
پلان معماری فوق در یک زمین ویلایی با سه طرف نور با ابعاد 8 متر عرض بنا و طول 10 متر ، یک طبقه با یک اتاق خواب مستر برای خانه باغ ، خانه روستایی یا شهری طراحی و ترسیم گردیده است .
در صورت نیاز به نقشه سازه فلزی یا بتنی می توانید با سفارش اختصاصی نقشه درخواست ثبت بفرمائید .
یک اتاق خواب مستر در جنوب غربی خانه و آشپزخانه در شمال غربی که در بین آنها حمام و سرویس بهداشتی به صورت عالی جانمایی و طراحی شده تا هم در سیستم لوله کشی و فاضلاب خانه بخوبی رعایت شود .
شایان ذکر است نقشه معماری خانه 80 متری فوق را می توان به دو خواب نیز تبدیل کرد که این یکی از ویژگی های برتر طراحی مهندسین پلان قصر محسوب می شود ، تا در آینده نیز شما به راحتی امکان این کار را داشته باشید .
درب ورودی خانه در یک عقب نشینی بسیار زیبا با دو شکست هندسی بخوبی طراحی گردیده تا نور مستقیم ، باران ، سرما و گرما وارد خانه نشود ، مسقف بودن ایون ورودی نیز از مزیت دیگر این نقشه محسوب می شود .
پذیرائی تقریبا 35 متری بسیار شیک با فرم مستطیل و دسترسی عالی به سایر نقاط خانه از جمله اتاق خواب و آشپزخانه بخوبی در نظر گرفته شده تا تردد در آن راحت و باعث آسایش ساکنین شود .
سقف خانه تک خواب 80 متری به صورت شیب دار در نظر گرفته شده است ولی می توان آن را به سقف صاف نیز تغییر دارد ، بسته به محل ساخت خانه شما و موقعیت جغرافیایی می توانید آن را انتخاب کنید .
یکی از شیت های نقشه معماری خانه 8 در 10 فوق ، نقشه پیش بینی تاسیسات به صورت جزئی است که شما بخوبی برای تاسیسات نیز پلان آن را دانلود خواهید کرد .
فروشگاه پلان قصر در سال ۱۳۸۶ با مدیریت مهندس کریمی شروع بکار نموده و با کمک خداوند متعال و سالها تجربه در زمینه طراحی و ترسیم نقشه های ویلایی و آپارتمانی توانسته رضایت اکثریت مشتریان را داشته باشد . دقت و سرعت در طراحی نقشه با ارائه جدیدترین متد ها برای طراحی پلان قصر رویائی شما سر لوحه کار ما است .


. Copyright © 2025 Planghasr.com — All Rights Reserved
نقد و بررسیها
هنوز بررسیای ثبت نشده است.